CT
弹簧操作机构(进线机构)

型号构成及含义
产品概述
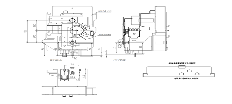
CT系列弹簧操作机构(进线机构)适用于XGN□-12/T630-25j及 XGN□-12/T1250-31.5型户内高压SF6负荷开关,额定电压12KV 户内开关的配套设备,该系列机构采用弹簧过中释放的原理制成, 其他工作位置为合闸、分闸和接地三工位,具有体积适中,安装 使用方便和适应性强的特点,具备有熔断器脱口的功能和加装分励 脱扣线圈及过载电流脱扣线圈。 该机构符合GB3804《3.6KV-40.5KV高压交流负荷开关》,GB16926 《交流高压负荷开关-熔断器组合电器》的相关要求。
操作规范
◆ 负荷开关的合闸操作
将机构安装固定在本体上,使用专用的操作手柄,插入到机构合闸操作轴(下边),顺时针旋转至合闸;
逆时针旋转弹簧完成储能,机构带动触头快速的做负荷开关的合闸动作,同时弹簧储能为分闸做准备或
电动操作电机通电带动机构完成开关合闸操作。
◆ 负荷开关的分闸操作
只需通过分闸按钮,使分闸弹簧的能量释放,机构带动主轴完成快速分闸动作。
◆ 负荷开关的接地合闸操作
操作手柄插入接地操作轴(上边)逆时针方向转动90°,本体在机构弹簧力的作用下接地回路合闸。
◆ 负荷开关的接地分闸操作
将操作手柄逆时针方向转动约90°,本体在机构弹簧力的作用下接地回路分闸。
注:
1.出现弹簧操作机构具有熔断器脱口,手动分闸按钮功能,可附加分闸脱扣线圈和过电流脱扣线圈;
2.用户订电动弹簧操作机构时请注明电压等级(如DC220、DC110、DC48、DC24等);
3.用户如需分励脱扣线圈请在订货时说明电压等级,不注明则视与电动操作电机电压等级相同。
外形与安装尺寸